Casa Container / McLeod Bovell Modern Houses
- JOSE LUIS SANTIN
- 24 sept 2018
- 2 Min. de lectura
https://www.plataformaarquitectura.cl/cl/902397/casa-container-mcleod-bovell-modern-houses
Descripción enviada por el equipo del proyecto. La Casa Container es el hogar para una pareja con tres hijos adultos que solicitaron un acuerdo de vida compacto y simplificado con miras a la jubilación. Buscaron espacios que ofrecieran la comodidad de un departamento con la adición de atractivas y amplias áreas exteriores cubiertas. Sin embargo, trasladarse de una casa familiar que estaba situada en un terreno llano y muy arbolado a una propiedad en la ladera de una montaña con pendiente pronunciada, creó la oportunidad para diseñar una casa luminosa y abierta, dispuesta sobre el suelo.
Aunque las pautas de planificación habrían permitido una casa un poco más grande en tres niveles, se decidió que un esquema con solo dos plantas -aunque de menor tamaño en general- crearía una casa con volúmenes interiores más generosos y una mayor posibilidad arquitectónica.
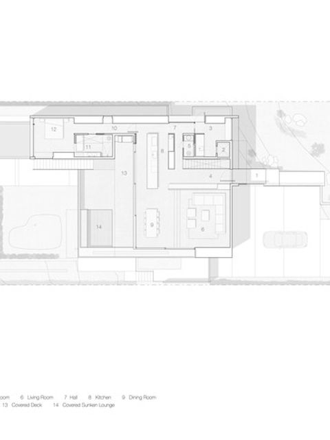
Todos los elementos esenciales para la vida diaria se encuentran en el piso superior, incluido el dormitorio principal, mientras que los dormitorios secundarios, una oficina y una sala de recreación se encuentran en el piso inferior. Esta estrategia minimiza el desplazamiento vertical dentro de la casa al eliminar un tramo de escaleras.
Ubicar el garaje en un nivel intermedio entre las dos plantas significa que las distancias desde el automóvil son menos que de una planta completa. La impresión es de una serie de espacios expansivos pero íntimamente conectados horizontal y verticalmente.
La estructura del piso superior toma la forma de una L con el ala del dormitorio principal en voladizo muy por encima de los techos de las casas vecinas. Este volumen se proyecta profundamente en el patio trasero y proporciona privacidad al oeste y protección solar para la piscina que, con su acabado oscuro, refleja el container en voladizo que está encima.
Dado el ancho limitado del sitio, las habitaciones están apiladas una detrás de la otra. La sala de estar está colocada detrás y ligeramente arriba del comedor para permitir ver los muebles en el frente. Cuando hay buen clima y cuando se abre la pared de las puertas, una gran terraza cubierta extiende significativamente la superficie habitable de la casa. Un monitor de ventana y un techo inclinado ofrecen un alto vislumbre de montañas y luz del norte que equilibra las vistas primarias del sudeste.







Comentarios